
有一個案例,是使用蜂蜜作為原料,但這種自然蜂蜜具有一些特殊的味道和缺陷,因此需要先將其稀釋至30%,然后處理后再將其濃縮至80%。蜂蜜中含有活性物質,所以在處理過程中要確保溫度不高于65℃,處理能力約為1000KG/H。80%蜂蜜的粘度約為3000cp。

常見的物料濃縮方式包括升膜/降膜濃縮、RO膜濃縮、閃蒸濃縮和冷凍濃縮。RO膜濃縮在低溫條件下進行,符合溫度要求,但是由于物料的粘度較大,容易堵塞膜孔。冷凍濃縮雖然也在低溫條件下進行,但成本較高。升膜/降膜和閃蒸濃縮的溫度較高,且高粘度的物料不太適合。
根據數據,-0.9的真空度下,水的沸點為48℃,與65℃的要求有足夠的溫差(約17°C,可以將其計算為15°C,以留有2°C的余量),因此可以利用這個溫差進行脫水。
如果產品的進料流量為1000kg/H,從30%脫水到80%,需要脫水量為1000-1000*30%/80%=625kg。因此,循環流量必須為625/2/15=20.83kg/h。從數據來看,這似乎是可行的。

產品的進料溫度為63℃,脫水后水分蒸發會使其降溫至48℃,因此在循環過程中需要升溫,將溫度提高到63℃。為確保產品升溫過程中不超過65℃,循環水的溫度保持在65℃。
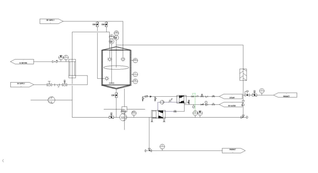
可以利用brix儀表監控最終產品的濃度是否達到80%,如果低于80%,則繼續循環;如果達到了,則進行出料;如果高于80%,則增加進料量。出料量通過控制閥進行調節。
在閃蒸濃縮過程中,一些風味物質可能會隨蒸汽脫出,因此可以利用換熱器進行冷凝,以回收風味物質。
考慮到熱能回收,可以將蒸汽的熱能回收為熱水,由于蒸汽溫度為48℃,回收的熱水溫度約為40℃,可以用于稀釋原始蜂蜜。
由于蜂蜜的粘度較大,建議使用東正轉子泵或雙螺桿泵。在蜂蜜進入閃蒸罐后,可以通過一個大圓盤將其分散到四周,增加換熱面積。為確保雙螺桿泵的汽蝕余量達到-0.9bar,建議咨詢專業工程師以確保可行性。
濃縮后的蜂蜜與原始蜂蜜在線混合,利用靜態混合器進行混合。出料后,可以通過攪拌漿進行混合,以確保出料的均勻性。
本文轉載自“乳品工程師”公眾號,便于更廣泛的分享和討論。






浙公網安備 33030302001132號
